JR Club Class

Premium Residential Plots in KHB Suryanagar Phase-2 close to Electronic City, Bangalore

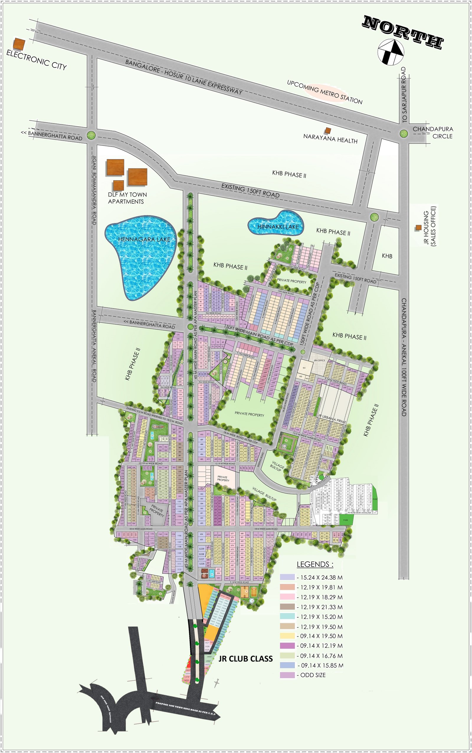
Welcome to JR Club Class,a premium extension of Urbania, where luxury living meets eco-conscious design in the heart of Bangalore's prestigious KHB Suryanagar Phase-2 suburb. Part of 100 acre development, our premium plots in Bangalore are crafted with a vision for a sustainable future and a focus on family-friendly living. Presenting first of its kind, 10 lane roads with bicycle tracks inside a BMRDA residential plotted community and our premium plots for sale in Bangalore, near Electronic City is conveniently located to ensure that you are well connected to educational institutions, work, metro station, healthcare and entertainment.

PROJECT

Project
plots
Offering

Premium Villa Plots | Commercial Plots facing 150ft wide road

sites
Project USPs

3 Acre Central Sports Park | 35,000 sq.ft Ready-to-use Club House | Ready-to-Live with 50+ Occupied Homes

villas
Bank loan approvals

HDFC & Axis

residential plots
Project Status

100% Developed | RERA registered | BMRDA (HPA) approved

BMRDA Approved Plots, Bangalore
JR Club Class
Villa Plots & Commercial Plots

The project offer premium plots attached to ready-to-use 35,000 Sft Luxury Sports Club and a 3 Acre Sports Park developed with Tennis court, Basketball court, Futsal field, Jogging track and Children Play area. Residential Plots are priced @Rs.5299/Sq.ft* Plot Dimensions: 30'x50', 30'x55' & 30'x60' Commercial Plots are priced @Rs.6499/Sq.ft* Plot Dimensions: 50'x80', 60'x80' & 80'x80'

CHECK AVAILABILITY

UNMATCHED LIFESTYLE

UNMATCHED LIFESTYLE
  • plots for sale in electronic city

    Basket Ball Court

  • residential plots for sale in electronic city

    Party Lawns

  • villa plots in electronic city

    Senior Citizen Park

  • sites in electronic city

    CCTV Surveillance

  • villas in electronic city

    Deticated Pet park

  • residential plots in E.city

    Gymnasium

  • plots for near me

    Cafeteria

  • sites for near me

    Banquet Hall

  • villas for near me

    Mini-Theater

JR CLUB CLASS

JR CLUB CLASS
  • JR Club Class

    BMRDA(APA) Approved | 100% Developed | RERA approved vide no.PRM/KA/RERA/1251/308/PR/210524/006915

Actuals Shots at Site

Invest in your dream

plots

Select a Plot size and get detailed information regarding availability, as well as an indication on the Master Plan on its placement.

Enquire Now Enquire Now

Prime Locality Seamless

Prime Locality Seamless
Office
School
Hospital
connectivity

Work

  • Infosys Campus - 12km
  • KM HCL Campus - 6.9km

Education

  • Delhi Public School - 15 KM
  • Treamis World School - 11 KM
  • Redbridge International Academy - 10 KM
  • 10 KM Sarala Birla Academy - 10 KM
  • Tapovan School - 9 KM
  • Achievers Academy - 8 KM

Hospitals

  • Narayana Hrudayalaya - 9km
  • Sparsh Hospital - 8.8km
  • Athreya Multi Specialist Hospital - 6km

Connectivity

  • Jigani APC Circle (Bannerghatta Road) - 4.3km
  • Chandapura Circle (Bangalore-Hosur road) - 6km
  • Metro station Bommasandra - 8km
  • Suburban Train station Heelalige - 8km
  • Domestic airport Hosur (upcoming) - 20km

Enquire Here

Please send us your query and we will get back to you shortly







📨
Enquire here